Описание
Характеристики
Отзывы
Описание
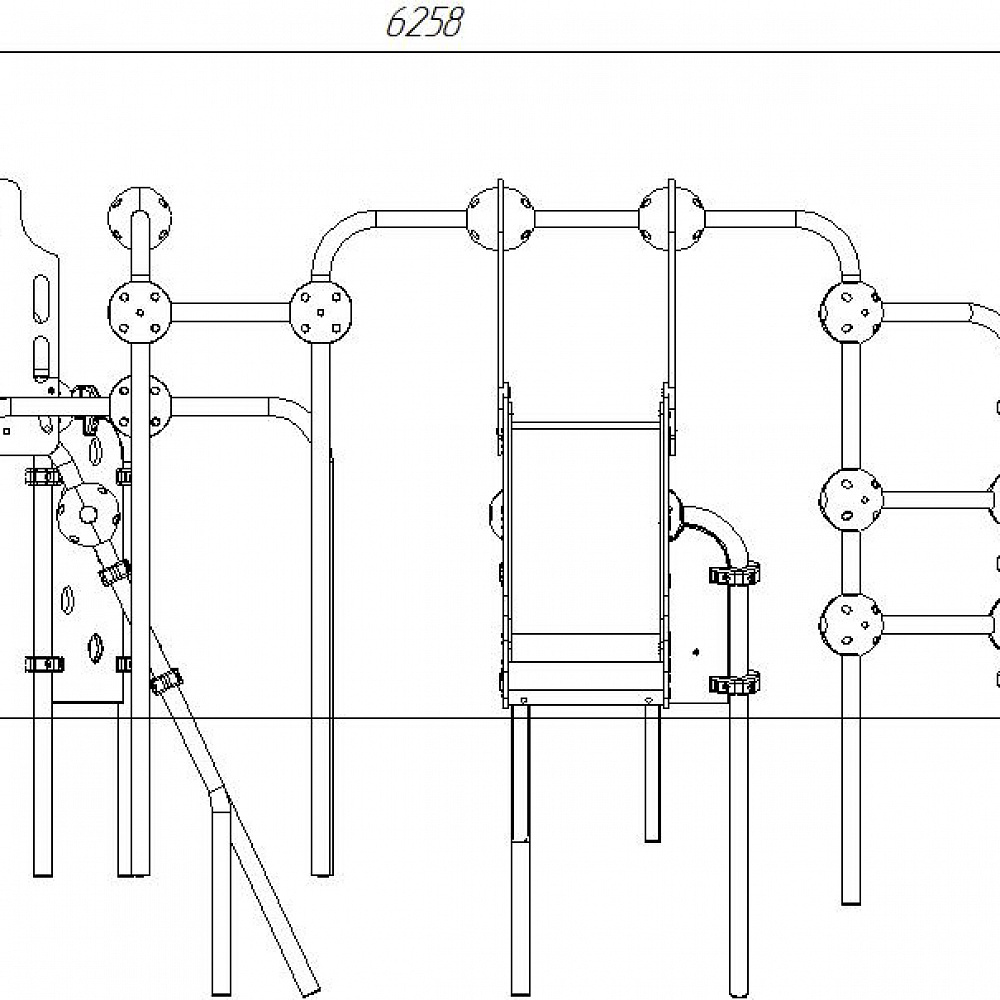
Оборудование уличное представляет собой устойчивую конструкцию, обеспечивающую безопасные условия для развивающих занятий на открытом воздухе.Конструкция обладает высокой ударопрочностью и виброустойчивостью. Во избежание травм и застревания одежды и частей тела, изделие разработано и изготовлено в соответствии с требованиями ГОСТ Р 52169-2012.Выполнен в виде металлических стоек из 057 трубы, соединенный шарами, имеются 2 горки h=950 мм., лазы.
Характеристики
Высота, (мм)
h=1726
Гарантия
1
Материал
фанера
Высота падения, мм
1600, Горка 950
Возрастная группа, лет
4-12
Серия
сфера
Габаритные размеры, мм
a=5625, b=6258
Зона безопасности, мм
8636х9193
Отзывы
Отзывов еще никто не оставлял
